2491 W Rock Island Ave, Flagstaff, AZ 86001
Toggle Navigation
Images
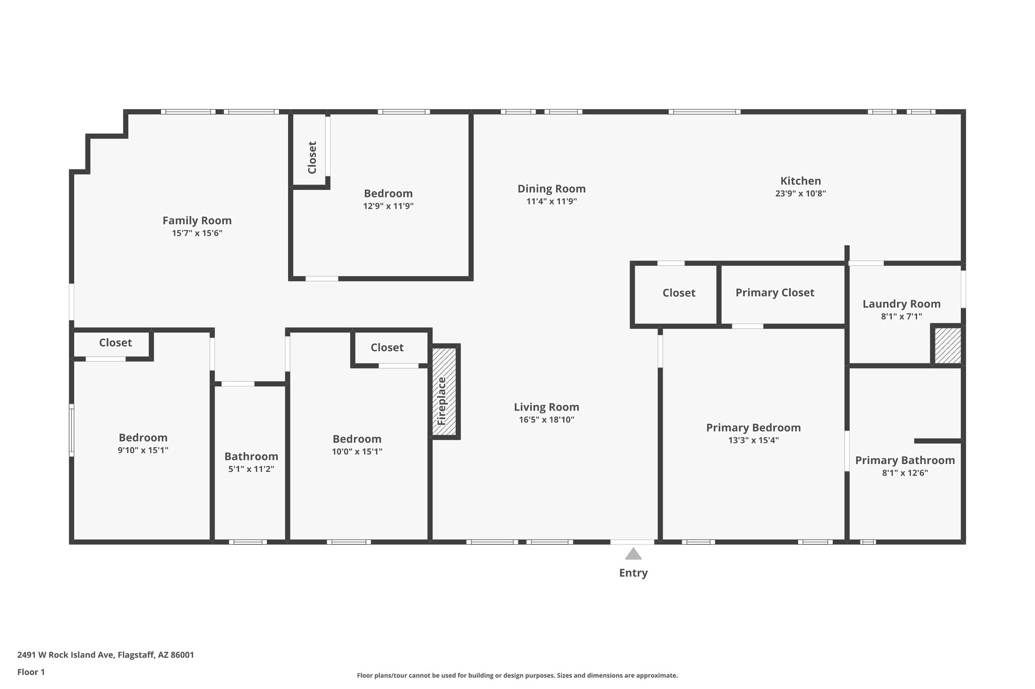
Floor Plans
3D Tour
Map
2491 W Rock Island Ave
Flagstaff, AZ 86001
Scroll to Content
Images
Slideshow
Photo Grid
Hide
Previous
Next
Show more
Floor Plans
Slideshow
Photo Grid
Hide
Previous
Next
3D Tour